Redlining
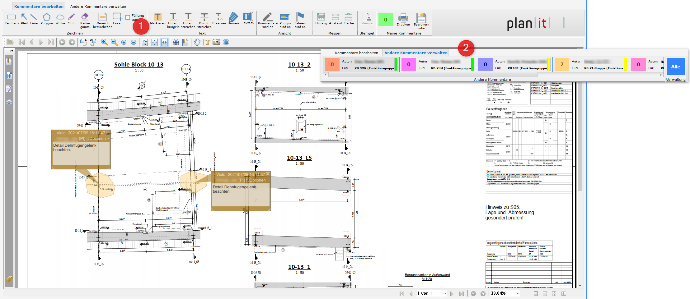
Das integrierte Redlining-Tool ermöglicht Planprüfung direkt im System ohne den Einsatz von Zusatzsoftware.

Das könnte Sie auch interessieren.
weiter zur Ansicht OpenBIM
Das integrierte Redlining-Tool ermöglicht Planprüfung direkt im System ohne den Einsatz von Zusatzsoftware.

Das könnte Sie auch interessieren.
weiter zur Ansicht OpenBIM